 
			 
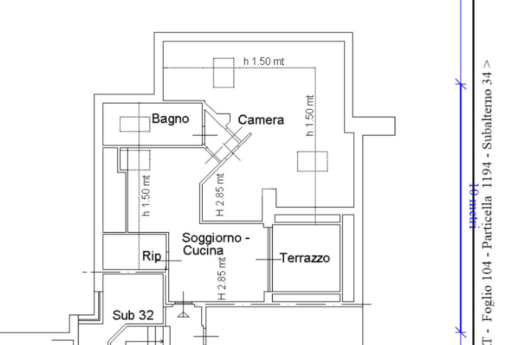
				Nel cuore del comune di Asti, proponiamo in vendita una mansarda accogliente e ben distribuita. Situata all'ultimo piano di un edificio costruito nel 2004, dotata di ascensore. L'ingresso si apre su un soggiorno luminoso, ideale per momenti di relax e convivialità. La cucina è a vista sul soggiorno. La zona notte comprende una camera da letto spaziosa, garantendo tranquillità e privacy. Il bagno, ben rifinito, completa l'offerta abitativa. La mansarda, è caratterizzata da finiture moderne e curate, che ne esaltano l'atmosfera accogliente. La posizione strategica permette di godere della tranquillità della zona, pur essendo a breve distanza dai principali servizi e collegamenti. Un'opportunità ideale per chi cerca una soluzione abitativa funzionale e ben posizionata.
Prezzo ridotto di €1 (16%%)
Ti interessa visionare l'immobile?